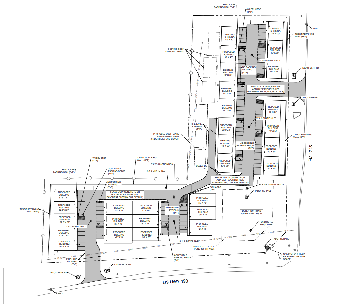
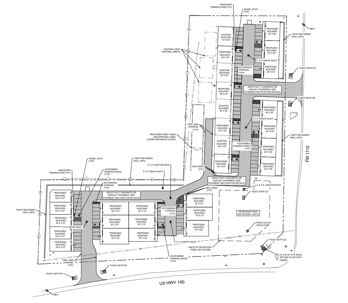
Phase I

Master Site Plan

Availability & Leasing Information

RiverPoint Business Park offers newly constructed 1,850 and 2,000 square foot office-warehouse units designed for contractors, service businesses, and light industrial users. Flexible layouts. Professional setting. Immediate access to Hwy 190.

  • Current Units Available: 3

  • Starting at: $1850 / month

  • Water & septic included

  • 3 × 50-amp services & 40 x 120V outlets

  • Private office + restroom